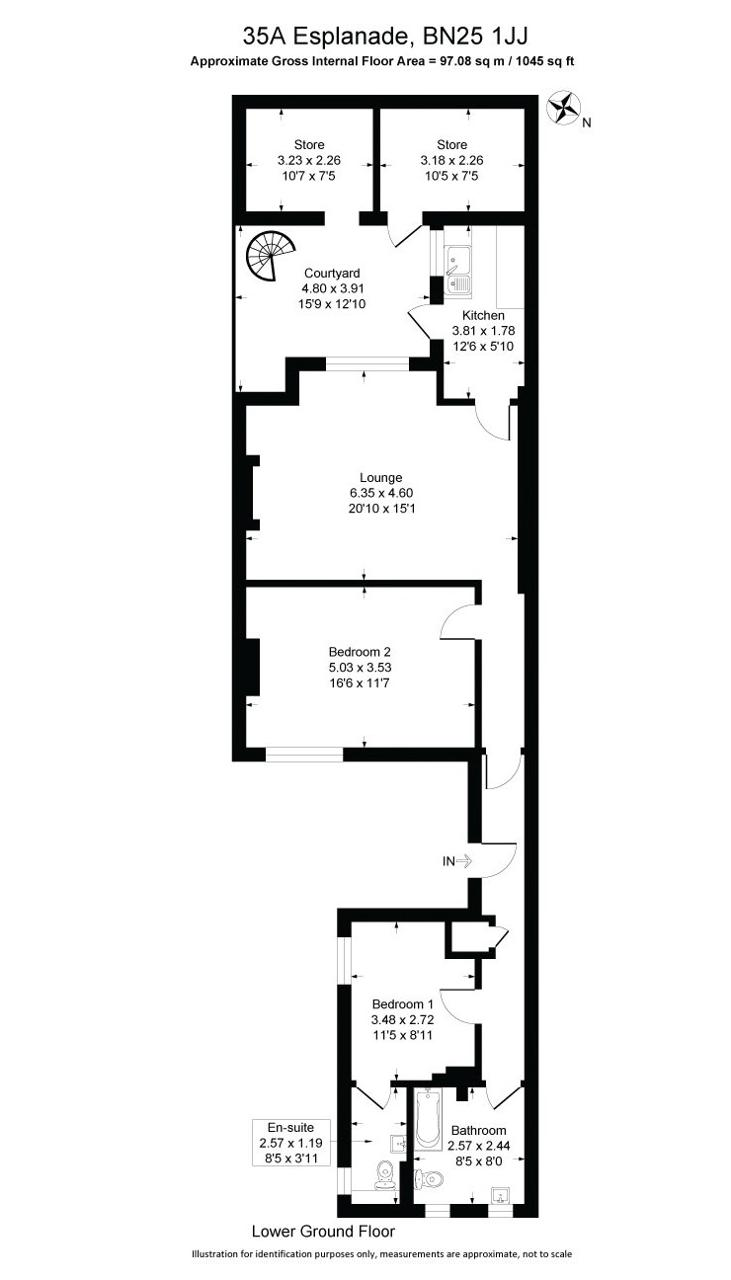
Floorplan of Esplanade, Seaford, East Sussex, BN25 1JJ
EPC Graph

Esplanade, Seaford, BN25

2 Bed Flat - £225,000

A two bedroom lower ground floor flat in this substantial end of terrace property facing the sea. The flat is very spacious and in good decorative order.

Council tax band: A
Lease: 999 years from 4th July 1983 with one fifth share of the freehold.
Service charge: £100 per month which includes the buildings insurance.


  • Lower ground floor flat
  • Spacious accommodation
  • Good decorative order
  • Gas central heating
  • Two bedrooms
  • Sought after seafront location
  • Patio garden
  • No onward chain

Council tax band: A
Lease: 999 years from 4th July 1983 with one fifth share of the freehold.
Service charge: £100 per month which includes the buildings insurance.

Room details Request viewing

Lower Ground Floor

Communal Entrance

Approached from the rear of the property. Door to flat 35A.

Hall

Long hall. Built in cupboard.

Lounge

about 20'10 x 15'1 (6.35m x 4.60m) Spacious lounge with large south facing window. Chimney recess with wooden mantel above.

Kitchen

about 12'6 x 5'10 (3.81m x 1.78m) Fitted with a range of matching units comprising wall cupboards and worktops with cupboards and drawers below. Inset one and a half bowl stainless steel sink and drainer. Space for cooker. Space and plumbing for washing machine or dishwasher. Door opens to the front courtyard.

Bedroom One

about 11'5 x 8'11 (3.48m x 2.72m) Window to the side aspect. Door opens to the en-suite.

En-Suite

Fitted with a matching white suite comprising wash basin and WC. Wall mounted Worcester gas combi boiler.

Bedroom Two

about 16'6 x 11'7 (5.03m x 3.53m) Window to the rear aspect.

Bathroom

about 8'5 x 8'0 (2.57m x 2.44m) Fitted with a matching white suite and comprising panelled bath with shower attachment off the mixer tap, pedestal wash basin and WC.

Exterior

Outside

Sunny southerly aspect courtyard area to the front of the flat with a galvanised metal spiral staircase leading directly to the Esplanade. There are two large storage areas accessed from the courtyard, one has power,lighting and a water supply & drainage.
To the rear of the building is an area of non-allocated off road parking accessed from Ringmer Road.